16号地
全20区画の分譲地!
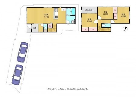
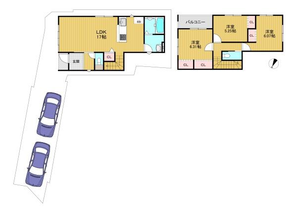
LDK約17帖!南面にバルコニーがある為、陽当たり良好!
買い物施設も徒歩圏内に充実で生活に便利な立地♪
更新日/2026年05月10日 次回更新予定日/情報提供より8日以内に更新
お問い合わせ番号/ 9942
新築戸建
3,680万円
京都府向日市物集女町北ノ口- 最寄駅
-
- 阪急電鉄京都線
- 洛西口駅徒歩16分
- 東海道本線
- 桂川駅徒歩24分
- 阪急電鉄京都線
- 桂駅徒歩27分
- 間取り/面積
-
- 間取り
- 3LDK
- 土地面積
- 112.05㎡ / 33.89坪
- 延床面積
- 85.07㎡ / 25.73坪
- 延床面積1F
- 43.88m2
- 延床面積2F
- 41.19m2
- 建物構造
- 木造 2階建
- 築年月
- 2025年11月
新価格
この物件の主な特徴
閑静な住宅地 大型タウン内 市街地が近い 開発分譲地内 前道6m以上 2沿線以上利用可 階建 2階建 日当り良好 通風良好 LDK広さ 15帖以上 和室 上水道 公営 汚水 下水道 ガス 都市ガス フローリング 駐車可能台数 2台可 リビング階段 全居室収納 収納スペース クローゼット システムキッチン カウンターキッチン 独立洗面台 シャワー トイレ2ヶ所 温水洗浄便座 バルコニー バルコニー有 ワイドバルコニー 南面バルコニー 周辺交通量少なめ スーパー 徒歩10分以内 ※設備名をクリックで対象の設備の物件一覧を絞り込みローンシミュレーション
- 物件価格
- 3,680万円
- 金利
- 返済期間
-
年
※物件によってはローン年数が変わる場合がございます。
- 頭金
-
万円
※半角数字でご入力ください。
- ボーナス併用支払い
-
併用する
3680.00万円のうちボーナス返済分
万円
※半角数字でご入力ください。
- 月割返済額
- ボーナス支払い額
(年2回) - 学校区
-
- 小学校区
- 第二向陽小学校 徒歩20分
- 中学校区
- 西ノ岡中学校 徒歩8分
- 間取り詳細
-
階数 区分 広さ 1F LDK 17.0帖 2F 洋 5.3帖 2F 洋 6.1帖 2F 和 6.3帖 - 駐車場
-
- 駐車可能台数
- 有2台
- 駐車場所
- -
- 駐車料金
- -
- タイプ
- -
- 公共設備
-
- ガス
- 都市ガス
- 水道
- 公営水道
- 汚水
- 公共下水
- 雑排水
- -
- 接道状況 他
-
- 向
- 一方
- 角地
- -
- -
- 北
- 幅員
- 6.00m
- 接面
- 3.50m
- 私道
-
- 私道
- -
- 持分
- -
- 面積
- -
- セットバック面積
-
- 状態
- -
- 幅
- -
- 面積
- -
- 現況
- 新築
- 引渡時期
- 相談
--- - 地目
- 宅地
- 地勢
- -
- 用途地域
- 第一種中高層住居専用地域
- - 建ぺい/容積率
- 60%/200%
- 都市計画
- 市街化区域
- 建築許可理由
- -
- 建築確認番号
- -
- リフォーム
- -
- - リノベーション
- -
- - 土地権利
-
- 権利
- 所有権
- 備考
- -
- 権利金
- -
- 再建築
- -
- 国土法届出
- 不要
- その他制限事項
- 高度地区
備考:- - 町会費
- --
- 備考
- ※買主様の登記は売主指定の司法書士にて。
- 取引態様
- 仲介
※金利につきましては各金融機関の審査金利及び融資金利により異なります。
実際の返済額は結果と異なりますので、資産計画の目安としてご利用ください。
詳しいお問い合わせは、こちらよりご相談ください。
センチュリー21ジャパン加盟店
(公社)全日本不動産保証協会
(社)近畿地区不動産公正取引協議会
(財)住宅保証機構
AIG損害保険株式会社
長岡京市商工会
(公社)全日本不動産保証協会
(社)近畿地区不動産公正取引協議会
(財)住宅保証機構
AIG損害保険株式会社
長岡京市商工会













